Yafiza Zorro

Arch. Dr ès Sc. EPFL SIA - Patenaire

2022 Création du bureau Fractal Architecture, Genève
2016-21 Collaboratrice chez LRS, Genève
2015 Docteur ès Sciences EPFL
2011-14 Assistante-doctorante LASUR, EPFL
2008-14 Collaboratrice chez LACROIX | CHESSEX, Genève
2008 Diplôme MAS. IAUG, UNIGE
2006-07 Stage chez LACROIX | CHESSEX, Genève
2005-07 Etudes de master. MAS. IAUG, UNIGE
2003-05 Collaboratrice au bureau d’Urbanisme. UNAL, Bogotá
2004 Diplôme d’architecture. UNAL, Bogotá
1998-2003 Etudes d’architecture. UNAL, Bogotá
1982 Née à Bogotá, Colombie

PORTFOLIO

Surélévation sept étages, Genève

Phase Autorisation de construire
Date 2022
Programme 32 app, rez-de-chaussée commercial, 1er étage activités, parking sur deux sous-sols
Surface 3’800 m2 (log.) + 2’700 m2 (act.)
© images, plans FRACTAL
projects
projects
projects

Surélévation d’un immeuble, Onex

Phase Autorisation de construire
Date 2021
Programme 8 app, agrandissement des balcons de 24 app, rénovation de la façade
Surface 2´700 m2
Architecte LRS
Rôle Cheffe de projet
© plans LRS
projects

Logements Amandolier, Eaux-vives, GE

Phase Autorisation de construire
Date 2020-21
Programme 86 app, parking au sous-sol
Surface 9´170 m2
Architecte LRS
Rôle Cheffe de projet
© images, plans LRS
projects
projects

Logements La Gradelle, Cologny, GE

Phase Pré-exécution, exécution
Date 2016-19
Programme 97 app ts, parking au sous-sol
Surface 10`550 m2
Architecte LRS
Rôle Collaboratrice
© photo, plan LRS
projects

Villa individuelle, St. Sulpice,VD

Phase Projet, exécution
Date 2006-09
Programme Villa individuelle ss + r + 2
Surface 319 m2
Architecte Lacroix | Chessex
Rôle Collaboratrice
© images, coupe Lacroix | Chessex
projects
projects

Concours salle communale, Pregny - Chambésy

Phase Concours, 1er prix, 2e rang
Date 2010
Programme Salles de fêtes et de société
Surface 1´400 m2
Architecte Lacroix | Chessex
Rôle Cheffe de projet
© image Lacroix | Chessex
projects

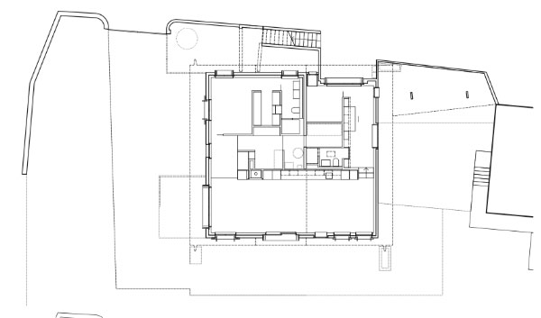
Transformation d’une maison, St. Sulpice, VD

Phase Ensemble de phases SIA
Date 2010-11
Programme 2 app, rénovation de i´enveloppe
Surface 200 m2
Architecte Lacroix | Chessex
Rôle Cheffe de projet
© photo, plan Lacroix | Chessex
projects
projects

Bibliothèque d’art et d’archeologie, GE

Phase Détails de serrurerie et menuiserie
Date 2006-10
Programme Salles de consultation
Surface 2’500 m2
Architecte Lacroix | Chessex
Rôle Cheffe de projet
© photo, plan Lacroix | Chessex
projects

Concours salle communale, Echandens, VD

Phase Concours, 2e prix
Date 2009
Programme Salles de fêtes et de société
Surface 1’500 m2
Architecte Lacroix | Chessex
Rôle Collaboratrice
© image Lacroix | Chessex
projects